Logistikzentrum

Neubau eines Logistikzentrums

Ort

Oyten

Bauherrschaft

Unternehmensgruppe Pietsch

Zeitraum

2023 – 2026

Leistungen

LPH 1 – 8

BGF

26.600 m²

BRI

313.000 m²

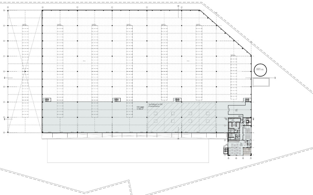
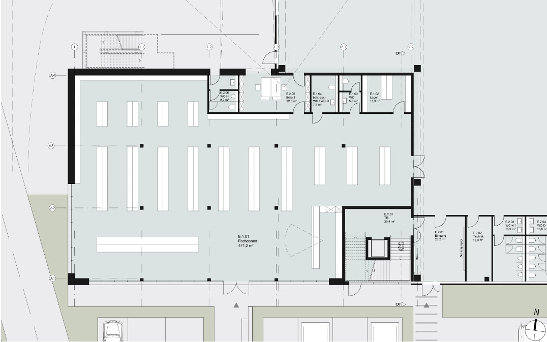
Integriertes Fachcenter für Sanitär- Heizungs- und Klima Bedarf. Optimierte Logistikabläufe dank moderner Autostore-Anlage.

Nach oben scrollen