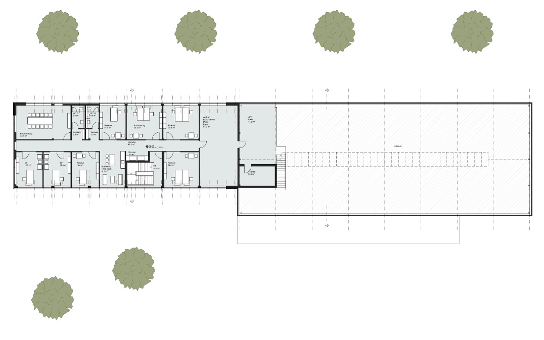
Firmensitz

Nebau eines Firmensitzes

Ort

Münster

Bauherrschaft

Eugen Büring GmbH

Zeitraum

seit 2024

BGF

1.580 m²

BRI

8.600 m²

Firmensitz mit je ca. 700 m² Büro und Hallenfläche

Nach oben scrollen