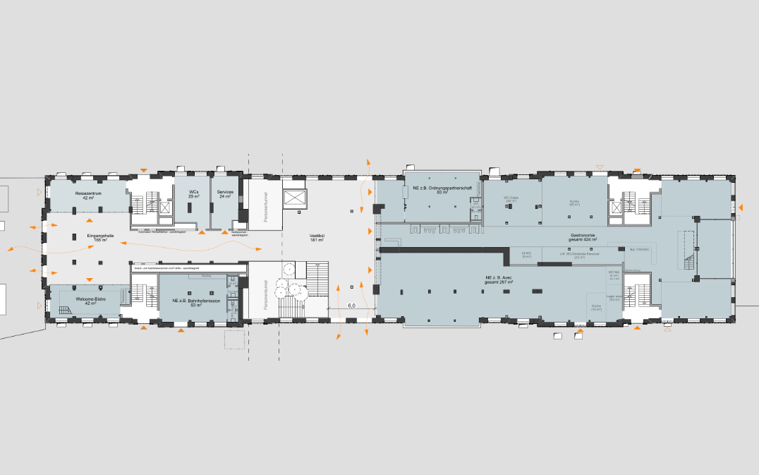
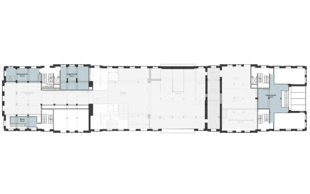
Empfangsgebäude Bahnhof

Sanierung, Umbau und Revitalisierung eines denkmalgeschützen Empfangsgebäudes

Ort

Düren

Zeitraum

seit 2024

Denkmalgerechte und energetische Sanierung der Außenhülle inkl. Instandsetzung von historischen Naturstein-, Ziegel- und Putzflächen
Rückbau nicht denkmalgerechter Einbauten sowie denkmalorientierte Freilegung der Empfangshalle
Beheben funktionaler Defizite, wie z.B. Verbesserung des Sicherheitsgefühls in den öffentlichen Flächen durch bessere Einsehbarkeit sowie durch Helligkeit und eine ungestörte Wegeführung
Revitalisierung des gesamten Gebäudes: Schaffung neuer morderner Grundrisse zur Nutzbarmachung des bisher in weiten Teilen leerstehenden Gebäudes
Verbesserung der Barrierefreiheit

Pläne

Nach oben scrollen